50000 ₴
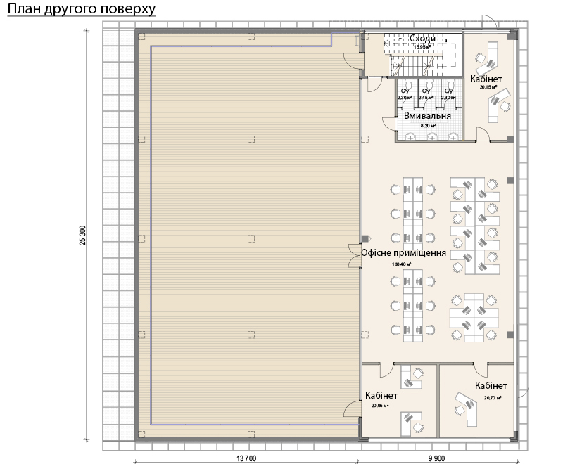
| Площа | 770,00 м2 |
|---|---|
| Тип фундаменту | монолітний з/б |
| Тип зовнішніх стін | сендвіч-панелі |
| Тип перекриття | монолітне з/б |
| Зовнішнє оздоблення | панелі |
Опис

50000 ₴
| Площа | 770,00 м2 |
|---|---|
| Тип фундаменту | монолітний з/б |
| Тип зовнішніх стін | сендвіч-панелі |
| Тип перекриття | монолітне з/б |
| Зовнішнє оздоблення | панелі |
